– Suspended Platform
Technical Data
| Item | RSP-800 | RSP-1000 |
|---|---|---|
| Rated Load | 800 kg | 1000 kg |
| Ascend Speed | 9–11 m/min | 9–11 m/min |
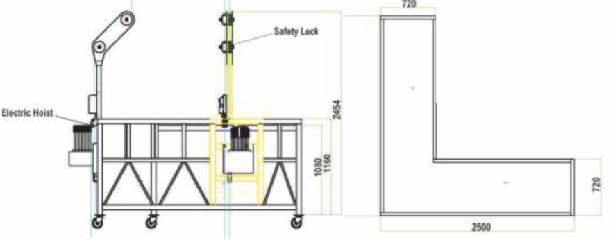
| Suspended Platform Size (L × W) | (2.5 m × 2 + 1.5 + 1) × 0.69 | (2.5 m × 2 + 1.5 + 1) × 0.69 |
| Wire Rope | 4 × 31SW + FC – 9.1 | 4 × 31SW + FC – 10.2 |
| Hoist Model | LTD80 | LTD80 |
| Rated Lifting Force | 8 kN | 10 kN |
| Electric Motor – Type | YEJ2-90L-4D | YEJ2-90L-4D |
| Electric Motor – Power | 1.8 kW | 2.0 kW |
| Electric Motor – Voltage | AC 415 V | AC 415 V |
| Braking Torque | 15.2 Nm | 15.2 Nm |
| Safety Lock Type | Tilt-proof safety lock | Tilt-proof safety lock |
| Height Adjustment | 1.5 m – 1.75 m | 1.5 m – 1.75 m |
| Front Beam Extent | 1.1 m – 1.7 m (load should be reduced when extent is 1.5 m or more) | 1.1 m – 1.7 m (load should be reduced when extent is 1.5 m or more) |
| Suspended Platform (Including Hoist, Safety Lock, Electric Control Box) | 545 kg | 610 kg |
| Suspension Mechanism | 2 × 170 kg | 2 × 170 kg |
| Balance Weight | 1000 kg | 1200 kg |
| Whole Machine Weight (Excluding Wire Rope & Cable) | 1885 kg | 2150 kg |
Rope Suspended Platform
RSP-800RSP-1000
Safety Features
- Safety Lock
- Centrifugal Speed Limiter
- Electromagnetic Brake
- Over Hoist / Top Limit Switch
- Anti-Tilting Device
- Anti-Sway Mechanism
- Overload Device
- Rope Locking Device
- Cable Protection Device
- Phase Monitoring
- Over Voltage Protection Device
- Locking arrangement for counter weights
- Panel board Lock & key
- Safety Lowering Mecha
RSP Temporarily Suspended Platform
It takes men and materials up to the ideal working height to get the job done (painting, welding, chimney maintenance, bridge construction, etc.) correctly and efficiently.
Time-saving and cost-saving alternative to tubular scaffolding
Unlimited working height
Quick and easy to assemble and install
Lightweight and easy to transport
It Consists Of:
Steel platform
Motorized traction hoists and controls
Steel wire ropes attached to a roof suspension system
